Trepunti di Giarre, adiacente svincolo autostradale A/18 e Strada Statale 114, in zona strategica e residenziale, l’Agenzia Metroquadro Immobiliare propone in vendita appartamenti di nuova costruzione in corso di realizzazione, posti al piano terra con terrazzi e giardino, all’interno di un piccolo residence formato da 4 unità immobiliari.
L’ immobile è così meglio descritto:
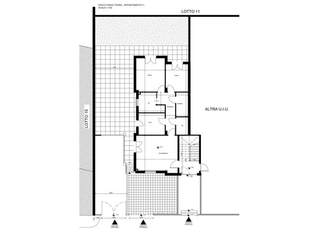
soggiorno/cucina zona living, due camere da letto, una cameretta (studio), bagno con box doccia, lavanderia interna con secondo servizio, ampio ripostiglio, ingresso carraio indipendente, terrazzo mq 80, giardino mq 50.
Possibilità di redistribuzione degli spazi interni adattabili alle specifiche esigenze nelle unità ancora da realizzare.
Ottimo capitolato, profilo moderno, funzionale e curato nei singoli dettagli: cappotto termico, pareti rivestite in “fibrogesso” con coibendazione termoacustica in lana di roccia, infissi alluminio anodizzato doppio vetro camera, porta blindata, predisposizione: condizionatori caldo/ freddo, impianto di antifurto e fotovoltaico.
Consegna entro Dicembre 2026.
Richiesta euro 190.000,00. Possibilità acquisto box/garage.
Classe energetica A+.
Per ulteriori informazioni e/o visite chiamare al numero 3392046332.
Possibilità di visionare progetti, planimetrie e capitolato, presso i nostri uffici di viale Libertà 137 Catania.
Scheda tecnica
| Rif. | 001 | Bagni | 2 |
|---|
| Cucina | A vista | Totale piani | 1 |
|---|
| Stato | Nuovo/in costruzione | Superficie | 95 (Mq) |
|---|
| Balcone | Presente | Box | Si |
|---|
| Locali | 4 | Riscaldamento | Autonomo |
|---|
| Piano | Terra | Giardino | Di proprietà |
|---|
| Ascensore | Nessuno | Prezzo trattabile | |
|---|
| Terrazzo | Presente | Classe energetica |  |
|---|
| Consumo stimato | | | |
|---|