Mq 170 - Locali: >5
Buone condizioni - In corso
Aci Catena - Catania
Via Oliva San Mauro, nell’incantevole scenario di Aci Catena, l’Agenzia  Metroquadro Immobiliare, propone in vendita splendida villa singola, di circa 170 mq posta all’interno di un lotto di terreno di circa 1000 mq. ...
€420.000,00
Immobile già venduto

Via Oliva San Mauro, nell’incantevole scenario di Aci Catena, l’Agenzia  Metroquadro Immobiliare, propone in vendita splendida villa singola, di circa 170 mq posta all’interno di un lotto di terreno di circa 1000 mq.

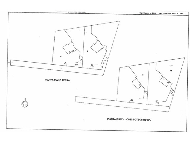
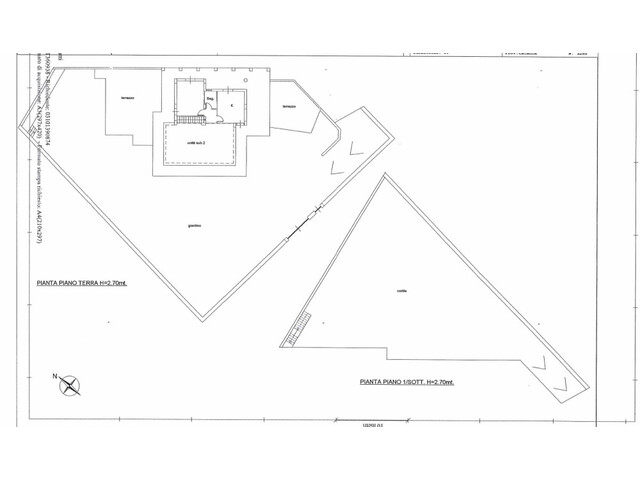
La villa è disposta su due elevazioni:

ingresso su grande salone di circa 50 mq con soppalco di altezza minima di mt 2, camera da letto o studio, bagno con box e cucina abitabile. Tutti i locali hanno aperture dirette sul giardino.

 Da una comoda scala interna si accede al piano terra/cantinato dove sono collocate le due camere da letto, cameretta, due bagni.

L’immobile in ottime condizioni, con infissi in vetro camera, antifurto, riscaldamento autonomo e condizionatori, più riserva idrica 50mL.

Ampi terrazzi posti al piano terra ed il giardino da circa 700 mq permettono di gustare l’incantevole vista.

L’immobile è dotato di regolare certificato di abitabilità.

Classe energetica in fase di rilascio.

Richiesta euro 420.000,00

Per ulteriori informazioni potete visionare il nostro sito www.mdueimmobiliare.it o chiamare il numero telefonico 3272113194.

Scheda tecnica

Rif.002Bagni3
CucinaAbitabileTotale piani2
StatoBuone condizioniSuperficie170 (Mq)
BalconePresenteBoxPosto auto
Locali>5RiscaldamentoAutonomo e condizionatore
PianoterraGiardinoDi proprietà
AscensoreNessunoPrezzo trattabile
TerrazzoPresenteClasse energeticaIn corso
Consumo stimato

I campi contrassegnati con (*) sono obbligatori.